
588 647 $ US USD
12 290 000 CZK
Maison à vendre, Hlavní, Březová-oleško, Praha-západ 25245, République Tchèque
84 m²
Annonce par CENTURY 21 Harmony
La propriété suivante,Accueil, située Hlavní, Březová-oleško, Praha-západ 25245, République Tchèque est présentement à vendre.Hlavní, Březová-oleško, Praha-západ 25245, République Tchèque affiche un prix de588 647 $ US.
Caractéristiques de la propriété
Propriété
- Superficie de la propriété:
84 m² - Type: Maison
- Caractéristiques: TerrasseCellierStationnement
Lot/Terrain
- Superficie du terrain/lot:
1 309 m²
Construction
- Année de construction: 1976
- État du bâtiment: Rénové
- Construction: PierresBrique
Stationnement/Garage
- Description du stationnement: Stationnement CouvertStationnement Libre
- Place de stationnement réservée: 4
Caractéristiques extérieures
- Espaces extérieurs: Terrasse
- Espaces de stationnement couverts:
Chauffage et climatisation
- Système de chauffage: FoursRadiateursFoyer
- Eau chaude: Chauffe-eau Individuels
- Système de refroidissement: Thermopompe
Services publics
- Autres services publics: Installations SanitairesÉlectriqueEau ChaudePuit
Description
Hledáte místo, kde si každé ráno vychutnáte kávu na terase s uklidňujícím výhledem do krajiny, během dne si užijete vlastní okrasnou zahradu s bazénem a večer zakončíte sklenkou vína při západu slunce?
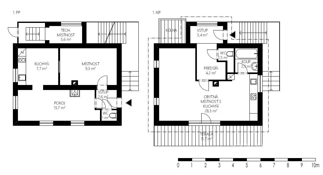
Dům s podlahovou plochou 83,5 m² nabízí v 1. patře hlavní obytný prostor o velikosti 44,5 m². V suterénu domu se nachází prostor o velikosti 39 m² s vlastním vstupem. Tento prostor lze využít jak pokoj pro hosty, pracovnu nebo zázemí pro podnikání. Nemovitost z roku 1976 je kolaudovaná jako rekreační rodinný dům a v roce 2025 proběhla kompletní rekonstrukce. Nemovitost je ideální jak pro podnikání nebo pronájem, tak i pro kombinaci bydlení, práce nebo rekreace.
Vytápění v domě je řešeno nově instalovaným tepelným čerpadlem (vzduch/voda), které zajišťuje vytápění i ohřev vody, v celém domě jsou instalovány radiátory. Příjemnou atmosféru v místnosti během zimních měsíců navozuje krb. V letním období pak můžete využít klimatizační jednotku v 1NP, která zajistí příjemné ochlazení interiéru.
Na zahradě se nachází novostavba prostorné dvojgaráže s automatickými vraty, vjezd na pozemek zajišťuje automatická pojezdová brána. Celý pozemek je kompletně oplocen v kombinaci kamenné a betonové zdi, která poskytuje dostatek soukromí.
Celkový pozemek o rozloze 1 309 m² je dle územního plánu určen k bydlení a nabízí se možnost výstavby dalšího rodinného domu. Pozemek je v zadní části mírně svažitý, v přední části se nachází garáž a plocha pro parkování. Na zahradě je vybudovaná vlastní studna.
Dispozice 1NP:
•tvstup
•tobývací část s krbem, propojená s ložnicí a kuchyní
•tpřímý vstup na terasu
•tkoupelna s vanou
•tsamostatná toaleta
Dispozice suterén:
•tsamostatný pokoj s krbem
•tkuchyňka
•tmístnost s infrasaunou
•ttoaleta
•ttechnická místnost
Obec Březová–Oleško se nachází v okrese Praha-západ, v krásné krajině nad pravým břehem Vltavy, pouhých 10 km od hranice Prahy. Mateřská škola je dostupná přímo v Olešku (1,5 km), základní škola v obci Zvole (4,8 km). Kompletní občanskou vybavenost nabízí nedaleké Dolní Břežany (9,5 km), které disponují školami, obchody, zdravotní péčí i širokými možnostmi sportovního a volnočasového vyžití.
Prodej domu na rozlehlém pozemku v obci Oleško - Březová je pouhých 25 minut jízdy od stanice metra Chodov nebo s přímým autobusovým spojením na metro Kačerov. Autobusová zastávka je vzdálená 5 minut pěšky, vlaková stanice Vrané nad Vltavou je vzdálená 10 minut autem. Do poloviny roku 2026 je v obci Oleško plánováno vybudování vodovodního přivaděče s vodojemy, kanalizace a od roku 2027 také výstavba nového chodníku.
Pokud toužíte vyměnit ruch města za klidné bydlení v přírodě s potenciálem dalších možností v blízkosti Prahy, neváhejte mě kontaktovat.
Ozvěte se mi, ráda vás osobně provedu touto nemovitostí.
Marcela Lisacová
Emplacement
Hlavní, Březová-oleško, Praha-západ 25245, République Tchèque